Объект: здание бани
- Адрес: г. Ростов-на-Дону.
- Площадь: 70 м.кв.
- Задача: сделать архитектурный проект небольшой бани при бассейне, для семьи из 5 человек.
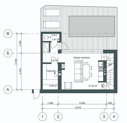
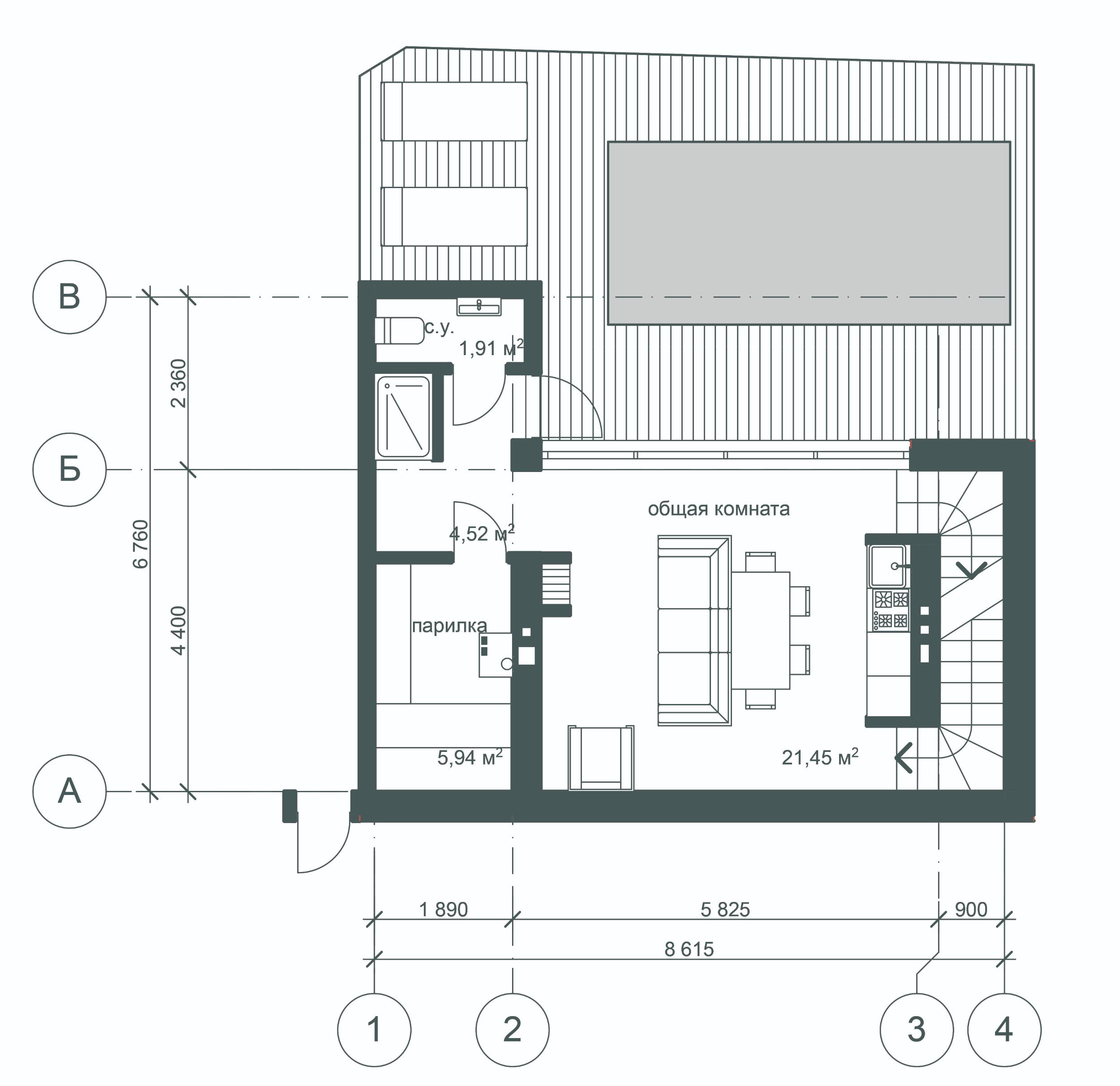
Заказчик хотел видеть в своём будущем доме кухню - гостиную, 1-спальню, парилку.
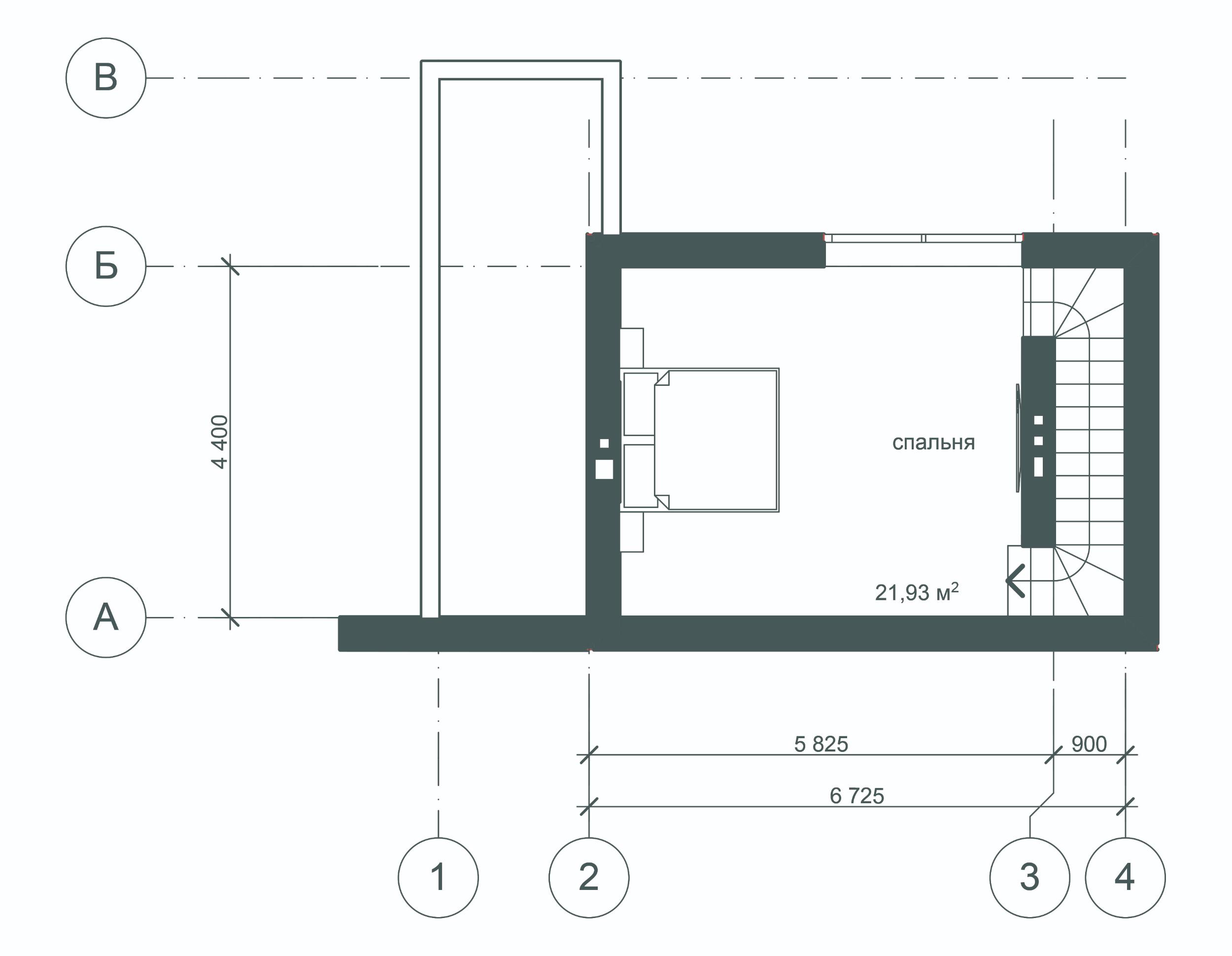
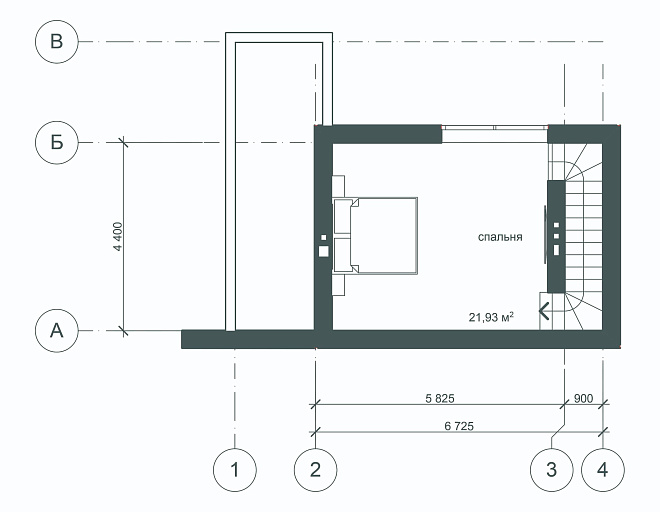
В процессе проектирования проект разросся до 3-ёх этажного настоящего мини-дома состоящего из подвала с техническими помещениями и мини офисом, первого этажа с комнатой отдыха, парилкой, сан.узлом и третьего, мансардного этажа, где расположилась спальня.
Характерная черта проекта – большое окно почти во всю стену с одной стороны банного комплекса с видом на бассейн и двор.
В проекте было использован классический абрис крыши – двухскатный, с эффектной врезкой окна в крышу. В качестве отделки применяется термодоска, фальцевая кровля, открытый брус.




